info@tuinontwerpbureau.nl
06 – 29 01 81 52
HOME
TUINONTWERP
Waarom een tuinontwerp
Voor wie
Werkwijze
Kosten
Groen en Gezondheid
Tuinadvies
3D Visualisaties
PROJECTEN
Projecten particulier
Bijzondere projecten
Zorginstellingen & belevingstuinen
Projecten in progress
Projecten bedrijven
NIEUWS
HET BUREAU
Visie
Wie is Greta
REFERENTIES
CONTACT
Home
»
PROJECTEN
»
Projecten particulier
»
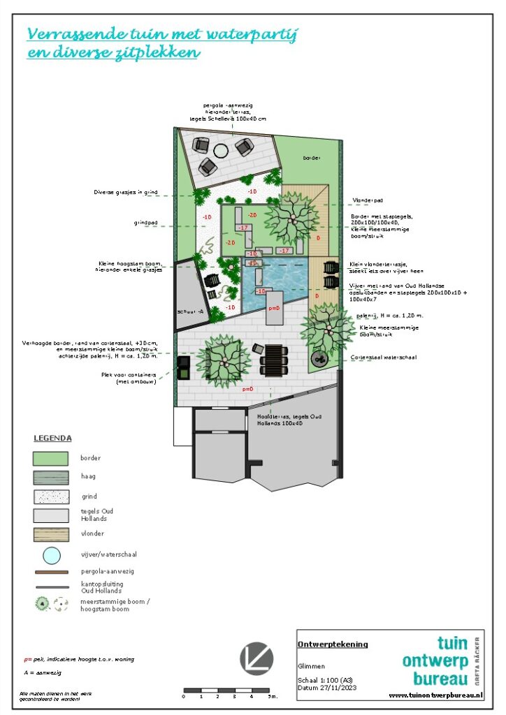
Sfeervolle, kleine vijvertuin (Glimmen)
Sfeervolle, kleine vijvertuin (Glimmen)